
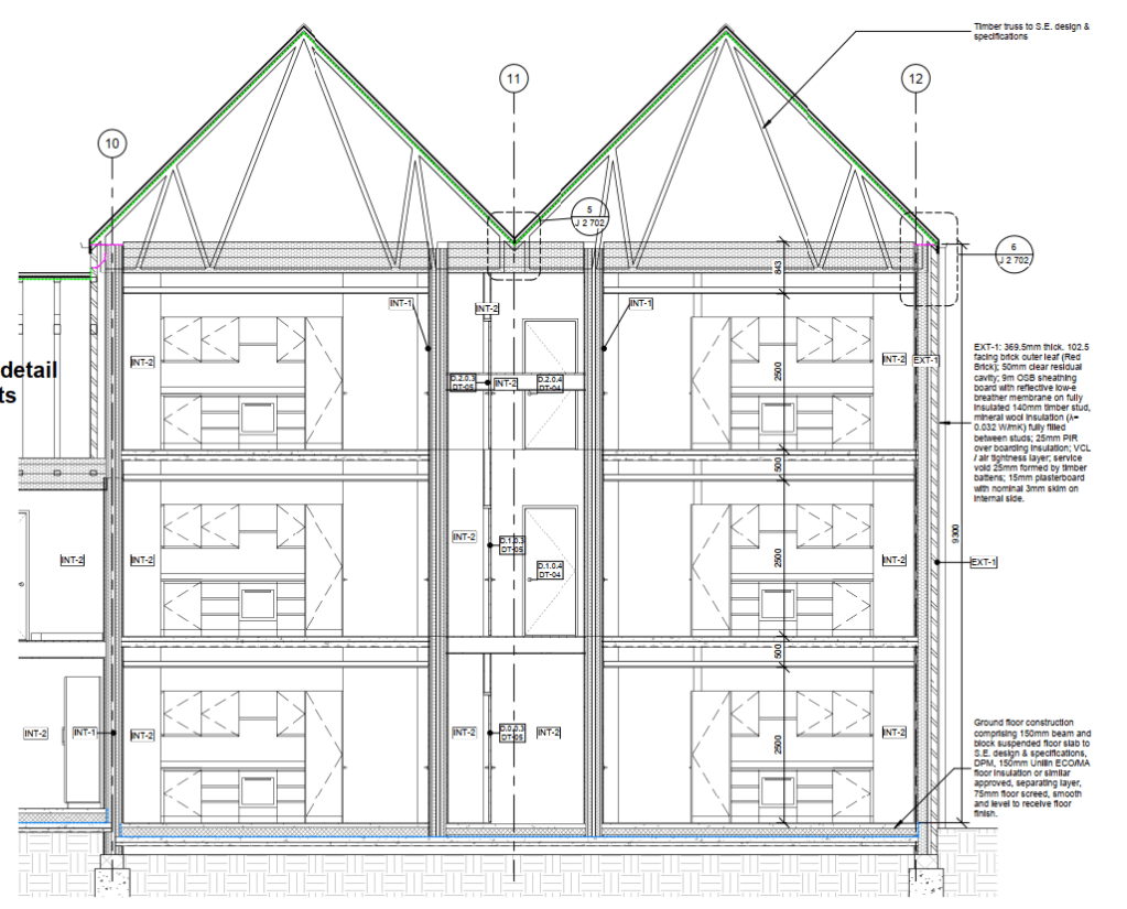
Prior to leaving TP Bennett to focus on my PhD in 2024, I worked on Newton Heath / Oldham Road Scheme, a housing development for One Manchester. The scheme features a series of building typologies with 100 apartments and 39 townhouses.
When I joined the project, it was already going through its technical stages. Together with a director and an architectural assistant I worked on a pack of construction drawings where we had to ensure correct brick, insulation and roofing products were specified. Different roof profiles offered a useful exercise in modelling a parametric Revit family of girders and trusses.
